Wyatt Road, London, N5

£4,750 pcm

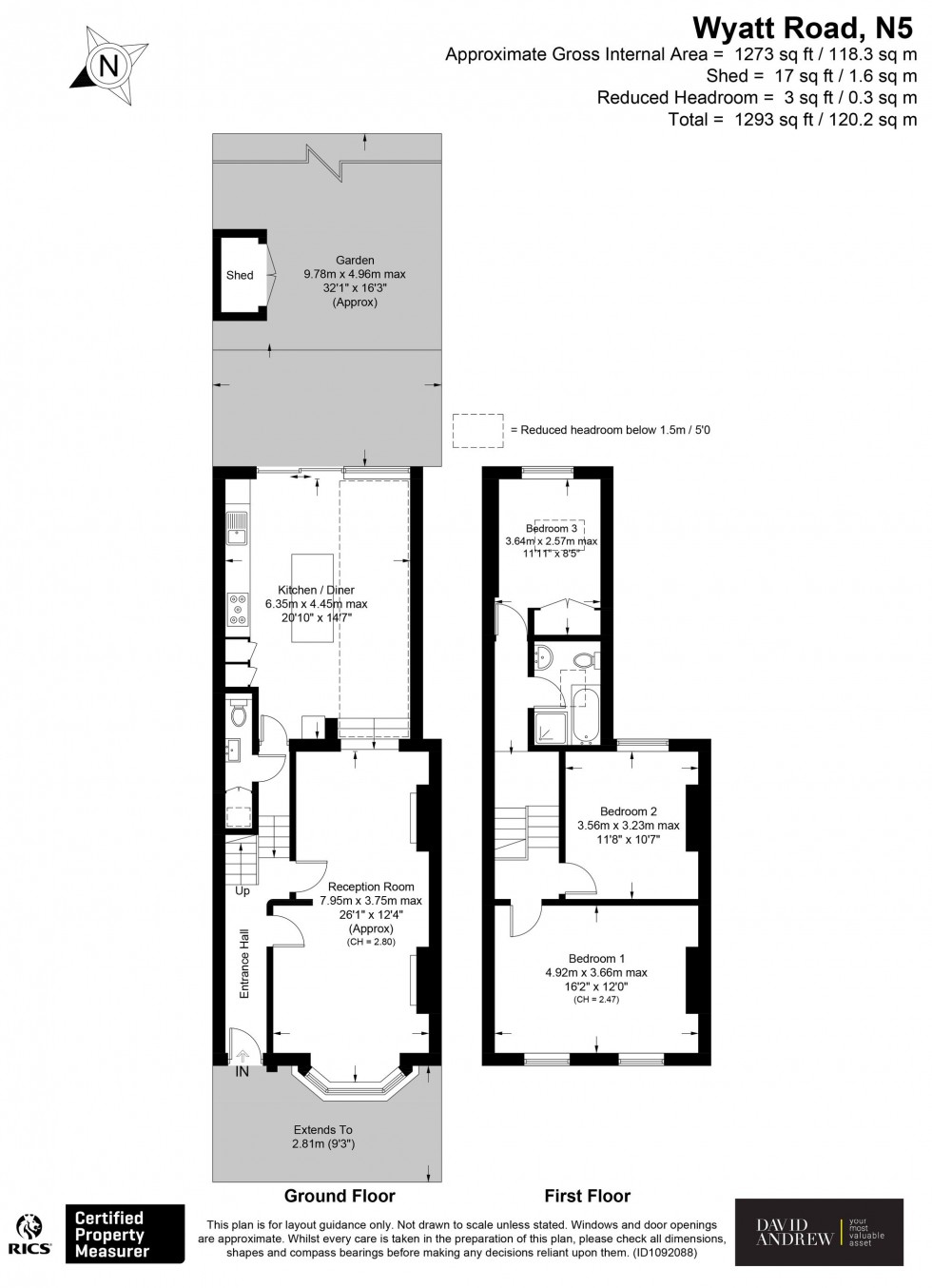
A Stunning three-bedroom mid-terrace Victorian house in N5. first viewings Saturday 27th September.The property offers 1293 sq.ft /118sqm of internal living space. The ground floor comprises two double reception rooms -with feature fireplaces and large bay windows. At the rear of the ground floor is a large bright kitchen extension with a glass ceiling plus a central island, perfect for entertaining, overlooking the stunning landscape garden through a large sliding door, allowing plenty of natural light to flow. The upper parts include three double bedrooms and a tasteful family bathroom with a skylight feature.

Wyatt Road is a quiet residential road in Highbury, which is ideally situated between the open spaces of Clissold Park and the shops and amenities of Highbury Barn. Available Part furnished from the 24th November 2025

A Stunning three-bedroom mid-terrace Victorian house in N5. first viewings Saturday 27th September.The property offers 1293 sq.ft /118sqm of internal living space. The ground floor comprises two double reception rooms -with feature fireplaces and large bay windows. At the rear of the ground floor is a large bright kitchen extension with a glass ceiling plus a central island, perfect for entertaining, overlooking the stunning landscape garden through a large sliding door, allowing plenty of natural light to flow. The upper parts include three double bedrooms and a tasteful family bathroom with a skylight feature.

Wyatt Road is a quiet residential road in Highbury, which is ideally situated between the open spaces of Clissold Park and the shops and amenities of Highbury Barn. Available Part furnished from the 24th November 2025

  • Stunning glass top kitchen
  • Part furnished
  • Private garden
  • Bright double receptions rooms
  • Three bedroom house
  • 1293 sq.ft /118sqm
  • Similar stock required
  • Victorian house
Floorplan for Wyatt Road, London, N5
EPC Graph for Wyatt Road, London, N5

Material Information

  • Local Authority: Islington
  • Outside Space: Type - Garden
  • All Others: Ask Agent

Viewing


  • Stunning glass top kitchen
  • Part furnished
  • Private garden
  • Bright double receptions rooms
  • Three bedroom house
  • 1293 sq.ft /118sqm
  • Similar stock required
  • Victorian house

Free property valuation


With three local offices we have unrivalled market knowledge. A senior member of the David Andrew team will come to your property to provide an accurate sales valuation or rental valuation and offer comparable properties we have sold in order to justify our valuation and to show how we can achieve you the best possible price.


Register with us


Register today to receive instant alerts when we add properties that match your requirements.