Marlborough Road, London, N19

£3,000 pcm

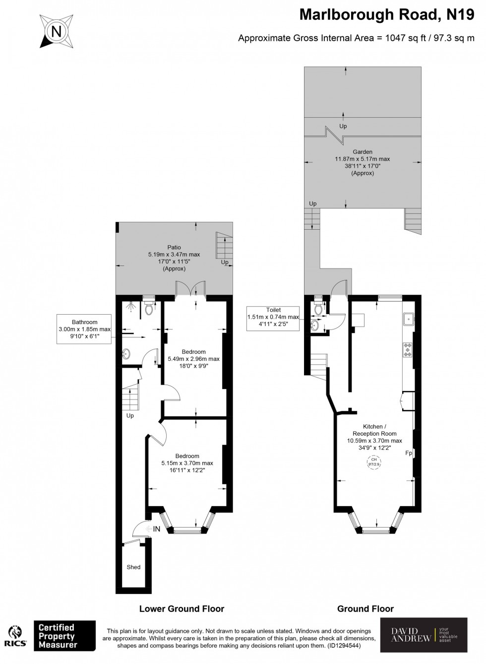
Beautifully presented, this two double bedroom apartment is arranged over two levels and benefits from a private garden and patio. Thoughtfully designed, it offers a harmonious blend of style and comfort across 1,047 sq ft (97 sq m), ideally located just moments from Archway (Northern Line) and Upper Holloway stations (Suffragette Line).

Every detail has been carefully considered, with high-quality fixtures and fittings enhancing each room and creating a sense of luxury throughout. The spacious open-plan living area is filled with natural light and complemented by elegant wooden flooring that runs seamlessly across the apartment, adding warmth and character. The fully fitted modern kitchen features sleek cabinetry, generous workspace, and integrated appliances, including a dishwasher and Rangemaster oven, making it ideal for both everyday living and entertaining. Both double bedrooms are generously proportioned and include storage, ensuring a clutter-free and tranquil environment. Additional features include gas central heating, a modern bathroom, and a separate WC, all finished to an exceptional standard with modern fixtures and fittings. Ample storage options and stylish lighting further enhance the sense of space and comfort.

Situated within walking distance of Upper Holloway (Suffragette Line) and Archway (Northern Line) stations, the property offers excellent transport links ensuring a quick connections to key destinations such as King’s Cross, the City, and the West End. The surrounding area is vibrant and well-served by a range of amenities, including independent cafés, restaurants, shops, and fitness facilities, providing both convenience and a lively neighbourhood atmosphere. Offered furnished and available from 1st June, this stunning apartment presents a rare opportunity to enjoy contemporary living in a highly desirable North London location.

Beautifully presented, this two double bedroom apartment is arranged over two levels and benefits from a private garden and patio. Thoughtfully designed, it offers a harmonious blend of style and comfort across 1,047 sq ft (97 sq m), ideally located just moments from Archway (Northern Line) and Upper Holloway stations (Suffragette Line).

Every detail has been carefully considered, with high-quality fixtures and fittings enhancing each room and creating a sense of luxury throughout. The spacious open-plan living area is filled with natural light and complemented by elegant wooden flooring that runs seamlessly across the apartment, adding warmth and character. The fully fitted modern kitchen features sleek cabinetry, generous workspace, and integrated appliances, including a dishwasher and Rangemaster oven, making it ideal for both everyday living and entertaining. Both double bedrooms are generously proportioned and include storage, ensuring a clutter-free and tranquil environment. Additional features include gas central heating, a modern bathroom, and a separate WC, all finished to an exceptional standard with modern fixtures and fittings. Ample storage options and stylish lighting further enhance the sense of space and comfort.

Situated within walking distance of Upper Holloway (Suffragette Line) and Archway (Northern Line) stations, the property offers excellent transport links ensuring a quick connections to key destinations such as King’s Cross, the City, and the West End. The surrounding area is vibrant and well-served by a range of amenities, including independent cafés, restaurants, shops, and fitness facilities, providing both convenience and a lively neighbourhood atmosphere. Offered furnished and available from 1st June, this stunning apartment presents a rare opportunity to enjoy contemporary living in a highly desirable North London location.

  • Two Double Bedrooms
  • Private Garden & Patio
  • Comprising 97 sq mt / 1047 sq ft
  • Fully Fitted Modern Kitchen
  • Split Level
  • Good Natural Light
  • Wooden Flooring Throughout
  • Walking Distance to Upper Holloway and Archway Stations
  • Offered Furnished
  • Available 1st of June
Floorplan for Marlborough Road, London, N19
EPC Graph for Marlborough Road, London, N19

Material Information

  • Tenure: Leasehold
  • Local Authority: London Borough of Islington
  • Council Tax Band: D
  • Water Supply: Direct Main Waters
  • Electricity Supply: National Grid
  • Sewerage: Standard
  • Heating Supply: Gas Central
  • Construction Materials: Brick And Block
  • Roof Material: Slate Tiles
  • Is Loft Boarded: No
  • Broadband: FTTP (fibre to the premises)
  • Mobile Coverage: Good
  • Outside Space: Type - Garden
  • Outside Space: Length - 1200
  • Outside Space: Orientation - NW
  • Parking: Parking Space Type - Permit
  • Parking: Capacity - 2
  • All Others: Ask Agent

Viewing


  • Two Double Bedrooms
  • Private Garden & Patio
  • Comprising 97 sq mt / 1047 sq ft
  • Fully Fitted Modern Kitchen
  • Split Level
  • Good Natural Light
  • Wooden Flooring Throughout
  • Walking Distance to Upper Holloway and Archway Stations
  • Offered Furnished
  • Available 1st of June

Free property valuation


With three local offices we have unrivalled market knowledge. A senior member of the David Andrew team will come to your property to provide an accurate sales valuation or rental valuation and offer comparable properties we have sold in order to justify our valuation and to show how we can achieve you the best possible price.


Register with us


Register today to receive instant alerts when we add properties that match your requirements.