Elthorne Road, Kinver House, N19 (Leasehold)

Guide Price, £400,000

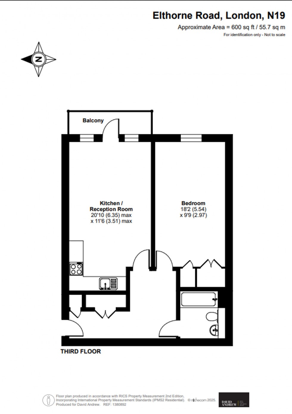
David Andrew are proud to present this impeccably kept one-bedroom flat boasting a generous 600 sq ft/55.7 sq m of living space. Step into the large open plan living area quality hard wood flooring throughout. Embrace moments of tranquillity on the private balcony, a serene escape for relaxation.

Recently redecorated to the highest standards, this property exudes elegance and sophistication. Cleverly designed to make the best use of space, this flat features smart built in storage throughout. With an impressive EPC B rating, you can enjoy low outgoings while minimising your carbon footprint. Added peace of mind comes from the new EWS1 certificate issued in November 2025, ensuring the building's safety standards are up-to-date.

Conveniently located, this residence is just a short walk from the Northern Line at Archway Station and Upper Holloway Overground, offering excellent transport links across London. You are also moments from an array of high-street shops (M&S, Aldi, Sainsbury’s, pubs and restaurants) as well as some of the area’s most beloved local spots, including Jolene and Tarn Bakery, perfect for weekend brunches or morning pastries. For those who love the outdoors, Waterlow Park, the Parkland Walk, Hampstead Heath and Finsbury Park are within easy reach, providing fantastic green spaces for walks, exercise and relaxation. Don't miss this rare opportunity to own a slice of luxury living in a prime location.

David Andrew are proud to present this impeccably kept one-bedroom flat boasting a generous 600 sq ft/55.7 sq m of living space. Step into the large open plan living area quality hard wood flooring throughout. Embrace moments of tranquillity on the private balcony, a serene escape for relaxation.

Recently redecorated to the highest standards, this property exudes elegance and sophistication. Cleverly designed to make the best use of space, this flat features smart built in storage throughout. With an impressive EPC B rating, you can enjoy low outgoings while minimising your carbon footprint. Added peace of mind comes from the new EWS1 certificate issued in November 2025, ensuring the building's safety standards are up-to-date.

Conveniently located, this residence is just a short walk from the Northern Line at Archway Station and Upper Holloway Overground, offering excellent transport links across London. You are also moments from an array of high-street shops (M&S, Aldi, Sainsbury’s, pubs and restaurants) as well as some of the area’s most beloved local spots, including Jolene and Tarn Bakery, perfect for weekend brunches or morning pastries. For those who love the outdoors, Waterlow Park, the Parkland Walk, Hampstead Heath and Finsbury Park are within easy reach, providing fantastic green spaces for walks, exercise and relaxation. Don't miss this rare opportunity to own a slice of luxury living in a prime location.

  • 600 sq ft / 55.7 sq m
  • Large Open Plan Living Area
  • Private Balcony
  • Hard Wood Flooring Throughout
  • Recently Redecorated
  • EPC B - £1,687.67 Service Charge - Low Outgoings
  • New EWS1 Issued Nov 2025
  • Short Walk to Stations (Northern Line & Overground) & High Street Shops
Floorplan for Elthorne Road, Kinver House, N19
EPC Graph for Elthorne Road, Kinver House, N19

Material Information

  • Tenure: Leasehold
  • Local Authority: Islington Council
  • Council Tax Band: D
  • Ground Rent : £300.00
  • Ground Rent Period: Year
  • Service Charge : £1,688.00
  • Service Charge Period: Year
  • Water Supply: Direct Main Waters
  • Electricity Supply: National Grid
  • Sewerage: Standard
  • Heating Supply: Gas Central
  • Construction Materials: Brick And Block
  • Is Loft Boarded: No
  • Broadband: FTTP (fibre to the premises)
  • Mobile Coverage: Good
  • Outside Space: Type - Balcony
  • All Others: Ask Agent

Viewing


  • 600 sq ft / 55.7 sq m
  • Large Open Plan Living Area
  • Private Balcony
  • Hard Wood Flooring Throughout
  • Recently Redecorated
  • EPC B - £1,687.67 Service Charge - Low Outgoings
  • New EWS1 Issued Nov 2025
  • Short Walk to Stations (Northern Line & Overground) & High Street Shops

Free property valuation


With three local offices we have unrivalled market knowledge. A senior member of the David Andrew team will come to your property to provide an accurate sales valuation or rental valuation and offer comparable properties we have sold in order to justify our valuation and to show how we can achieve you the best possible price.


Register with us


Register today to receive instant alerts when we add properties that match your requirements.