Hillmarton Road, London, N7 (Leasehold)

Guide Price, £975,000

We are delighted to offer this stunning off-market, two-bedroom garden property within the Hillmarton Conservation Area. This flat forms part of a development of five apartments that have been converted from a former children’s home on Hillmarton Road. Each individual unit has been meticulously refurbished to an exceptional standard with high quality finishes, modern craftsmanship and bright contemporary interiors.

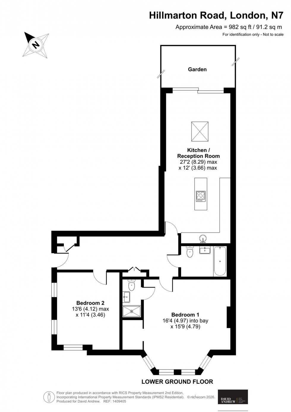
This flat comprises two double bedrooms, family bathroom, ensuite shower room and open-plan kitchen / reception with direct access to a private rear garden. The property benefits from 982 square feet of living space and has its own private entrance at the side of the building.

Hillmarton Road is well-located for access to Caledonian Road underground station (Piccadilly Line), local bus routes into central London.

We are delighted to offer this stunning off-market, two-bedroom garden property within the Hillmarton Conservation Area. This flat forms part of a development of five apartments that have been converted from a former children’s home on Hillmarton Road. Each individual unit has been meticulously refurbished to an exceptional standard with high quality finishes, modern craftsmanship and bright contemporary interiors.

This flat comprises two double bedrooms, family bathroom, ensuite shower room and open-plan kitchen / reception with direct access to a private rear garden. The property benefits from 982 square feet of living space and has its own private entrance at the side of the building.

Hillmarton Road is well-located for access to Caledonian Road underground station (Piccadilly Line), local bus routes into central London.

  • 982sqft / 86sqm of living space
  • 2 bedrooms
  • 2 bathrooms
  • Private entrance
  • Private garden
  • New development
  • 125 year lease
  • High quality throughout
Floorplan for Hillmarton Road, London, N7

Material Information

  • Tenure: Leasehold
  • Is Loft Boarded: No
  • Outside Space: Type - Garden
  • All Others: Ask Agent

Viewing


  • 982sqft / 86sqm of living space
  • 2 bedrooms
  • 2 bathrooms
  • Private entrance
  • Private garden
  • New development
  • 125 year lease
  • High quality throughout

Free property valuation


With three local offices we have unrivalled market knowledge. A senior member of the David Andrew team will come to your property to provide an accurate sales valuation or rental valuation and offer comparable properties we have sold in order to justify our valuation and to show how we can achieve you the best possible price.


Register with us


Register today to receive instant alerts when we add properties that match your requirements.