St John's Villas, London, N19 (Leasehold)

Guide Price, £525,000

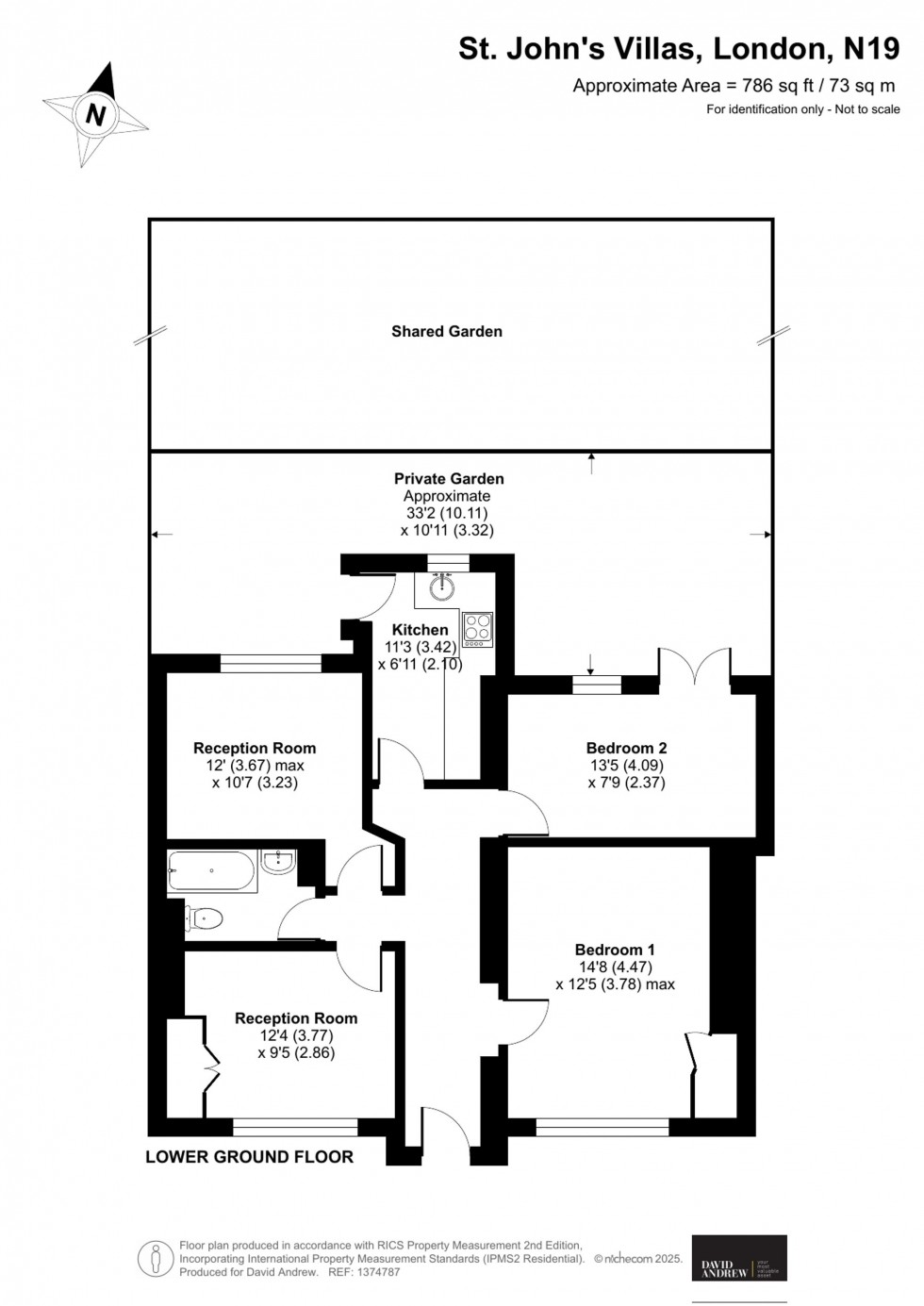
This spacious three double bedroom lower ground floor flat forms part of a handsome Victorian conversion, spanning approximately 786 sq ft / 73 sq m of well-presented living space. Benefiting from its own private front entrance, the property offers a well-balanced layout ideal for modern living.

The accommodation comprises three double bedrooms, a bright and comfortable open-plan living and dining room, and a separate kitchen leading directly to a private garden that wraps around the rear of the flat, providing secondary access via the third bedroom. A modern three-piece bathroom completes the layout.

Tastefully decorated throughout, this home is offered chain-free and benefits from a long lease of approximately 145 years remaining. The property also enjoys access to a large communal garden, providing additional outdoor space for residents to enjoy. Notably, the property has freeholder approval to extend the existing patio footprint. With an EPC rating of C, the home combines comfort, practicality, and longevity.

St John’s Villas is a picturesque, tree-lined residential street ideally located within walking distance of Archway Underground Station (Northern Line) and Upper Holloway Overground Station. The property is also close to the open green spaces of Whittington Park and Waterlow Park, as well as an excellent range of local shops, cafés, restaurants, and independent retailers in Archway, Highgate, Tufnell Park, and Crouch End.

This spacious three double bedroom lower ground floor flat forms part of a handsome Victorian conversion, spanning approximately 786 sq ft / 73 sq m of well-presented living space. Benefiting from its own private front entrance, the property offers a well-balanced layout ideal for modern living.

The accommodation comprises three double bedrooms, a bright and comfortable open-plan living and dining room, and a separate kitchen leading directly to a private garden that wraps around the rear of the flat, providing secondary access via the third bedroom. A modern three-piece bathroom completes the layout.

Tastefully decorated throughout, this home is offered chain-free and benefits from a long lease of approximately 145 years remaining. The property also enjoys access to a large communal garden, providing additional outdoor space for residents to enjoy. Notably, the property has freeholder approval to extend the existing patio footprint. With an EPC rating of C, the home combines comfort, practicality, and longevity.

St John’s Villas is a picturesque, tree-lined residential street ideally located within walking distance of Archway Underground Station (Northern Line) and Upper Holloway Overground Station. The property is also close to the open green spaces of Whittington Park and Waterlow Park, as well as an excellent range of local shops, cafés, restaurants, and independent retailers in Archway, Highgate, Tufnell Park, and Crouch End.

  • Three double bedrooms
  • 786 sqft / 73 sqm
  • Private garden & additional shared garden
  • Private front entrance
  • Excellent transport links
  • Three piece bathroom
  • Chain-free
  • Leasehold - 145 years remaining
Floorplan for St John's Villas, London, N19
EPC Graph for St John's Villas, London, N19

Material Information

  • Tenure: Leasehold
  • Local Authority: Islington
  • Council Tax Band: D
  • Ground Rent : £100.00
  • Ground Rent Period: Year
  • Service Charge : £754.00
  • Service Charge Period: Year
  • Service Charge Notes: Plus £1,050pa For Building Insurance.
  • Water Supply: Direct Main Waters
  • Electricity Supply: National Grid
  • Sewerage: Standard
  • Heating Supply: Gas Central
  • Construction Materials: Brick And Block
  • Roof Material: Slate Tiles
  • Is Loft Boarded: No
  • Mobile Coverage: Good
  • Outside Space: Type - Rear Garden
  • Outside Space: Description - Private Garden
  • Outside Space: Type - Communal Garden
  • Outside Space: Description - Communal Garden
  • Parking: Parking Space Type - On Street
  • Parking: Description - On Street, Residential Permit Parking
  • All Others: Ask Agent

Viewing


  • Three double bedrooms
  • 786 sqft / 73 sqm
  • Private garden & additional shared garden
  • Private front entrance
  • Excellent transport links
  • Three piece bathroom
  • Chain-free
  • Leasehold - 145 years remaining

Free property valuation


With three local offices we have unrivalled market knowledge. A senior member of the David Andrew team will come to your property to provide an accurate sales valuation or rental valuation and offer comparable properties we have sold in order to justify our valuation and to show how we can achieve you the best possible price.


Register with us


Register today to receive instant alerts when we add properties that match your requirements.