Colthurst Crescent, London, N4 (Freehold)

Guide Price, £750,000

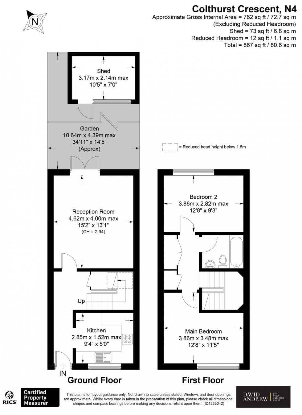
Introducing a charming recently refurbished freehold house with light-filled living space and a generous private garden, set on a quiet residential crescent in N4. This beautifully arranged two-bedroom home offers a blend of comfort, practicality and outdoor space, spread over two floors and totaling approximately 794 sq ft / 73.77 sq m. The ground floor features a bright, spacious reception room with direct access to the garden, along with a refreshed contemporary kitchen. The garden extends 10.64m x 4.39m and is ideal for relaxing and entertaining. Upstairs, you’ll find two well-proportioned double bedrooms and a sleek family bathroom, as well as ample storage cupboards on the landing, plus additional storage space in the loft. A private parking space at the front provides added convenience in this peaceful residential setting.

Conveniently located moments from Stoke Newington & Highbury, in close proximity to a wide variety of local shops, cafes & restaurants. Several delightful parks are nearby, including Clissold Park, Woodberry Wetlands, Highbury Fields & Finsbury Park. The property is well served by excellent transport links, including Manor House (Piccadilly Line), Finsbury Park (National Rail & Underground services), plus several well-connected local bus routes.

Introducing a charming recently refurbished freehold house with light-filled living space and a generous private garden, set on a quiet residential crescent in N4. This beautifully arranged two-bedroom home offers a blend of comfort, practicality and outdoor space, spread over two floors and totaling approximately 794 sq ft / 73.77 sq m. The ground floor features a bright, spacious reception room with direct access to the garden, along with a refreshed contemporary kitchen. The garden extends 10.64m x 4.39m and is ideal for relaxing and entertaining. Upstairs, you’ll find two well-proportioned double bedrooms and a sleek family bathroom, as well as ample storage cupboards on the landing, plus additional storage space in the loft. A private parking space at the front provides added convenience in this peaceful residential setting.

Conveniently located moments from Stoke Newington & Highbury, in close proximity to a wide variety of local shops, cafes & restaurants. Several delightful parks are nearby, including Clissold Park, Woodberry Wetlands, Highbury Fields & Finsbury Park. The property is well served by excellent transport links, including Manor House (Piccadilly Line), Finsbury Park (National Rail & Underground services), plus several well-connected local bus routes.

  • Recently refurbished freehold house in a peaceful N4 location
  • Two well proportioned double bedrooms and ample storage throughout
  • Bright and welcoming reception room that flows effortlessly out to the garden
  • 794 sq ft / 73.77 sq m
  • Spacious private garden
  • Separate kitchen with efficient layout
  • Excellent transport links nearby
  • Close to green spaces, local cafés, shops and amenities
  • Private parking
Floorplan for Colthurst Crescent, London, N4
EPC Graph for Colthurst Crescent, London, N4

Material Information

  • Tenure: Freehold
  • Local Authority: Hackney Council
  • Council Tax Band: D
  • Ground Rent : £0.00
  • Ground Rent Period: Year
  • Service Charge : £119.00
  • Service Charge Period: Month
  • Is Loft Boarded: No
  • Outside Space: Type - Garden
  • Outside Space: Description - Spacious Garden Ideal For Relaxing And Entertaining.
  • Outside Space: Length - 1064
  • Parking: Parking Space Type - Off Street
  • Parking: Capacity - 1
  • Parking: Description - Private Parking Included
  • All Others: Ask Agent

Viewing


  • Recently refurbished freehold house in a peaceful N4 location
  • Two well proportioned double bedrooms and ample storage throughout
  • Bright and welcoming reception room that flows effortlessly out to the garden
  • 794 sq ft / 73.77 sq m
  • Spacious private garden
  • Separate kitchen with efficient layout
  • Excellent transport links nearby
  • Close to green spaces, local cafés, shops and amenities
  • Private parking

Free property valuation


With three local offices we have unrivalled market knowledge. A senior member of the David Andrew team will come to your property to provide an accurate sales valuation or rental valuation and offer comparable properties we have sold in order to justify our valuation and to show how we can achieve you the best possible price.


Register with us


Register today to receive instant alerts when we add properties that match your requirements.