Landseer Road, London, N19 (Freehold)

Guide Price, £1,000,000

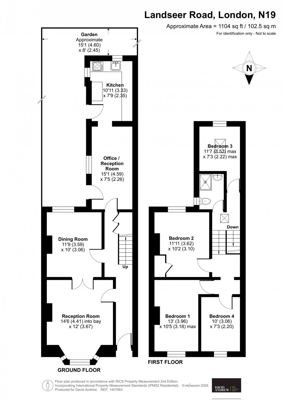
David Andrew Estates is delighted to present this impressive freehold house on Landseer Road, N19, offering versatile living space over two floors and a south-facing private garden. The property extends to approximately 1,104 sq ft (102.5 sq m) of well-planned living space.

Beautifully presented throughout, the home includes ample storage and a dual-aspect living and dining room, alongside a separate kitchen leading to a flexible additional reception room - ideal as a home office, playroom, or dining area depending on your needs over the years to come. The property features four double bedrooms and a shower room, combining period charm with modern practicality. Period features include cornicing, fireplaces, and high ceilings, enhancing the character and elegance of the home.

Set on a quiet, tree-lined street, Landseer Road offers privacy while remaining well-connected. Local transport links include Upper Holloway Overground Station and Archway Northern Line Station, providing excellent access to central London.

The area benefits from green spaces, including Waterlow Park, Finsbury Park, Whittington Park, and Landseer Gardens with a playground, as well as strong bus and cycle routes offering direct access to Islington, Angel, Camden, and onwards to King’s Cross. Local amenities are abundant, with shops, cafés, and services available in Archway, Tufnell Park, Highgate, Crouch End, and Islington.

This substantial family home is offered chain-free and presents a rare opportunity in a sought-after North London location. A viewing is highly recommended.

David Andrew Estates is delighted to present this impressive freehold house on Landseer Road, N19, offering versatile living space over two floors and a south-facing private garden. The property extends to approximately 1,104 sq ft (102.5 sq m) of well-planned living space.

Beautifully presented throughout, the home includes ample storage and a dual-aspect living and dining room, alongside a separate kitchen leading to a flexible additional reception room - ideal as a home office, playroom, or dining area depending on your needs over the years to come. The property features four double bedrooms and a shower room, combining period charm with modern practicality. Period features include cornicing, fireplaces, and high ceilings, enhancing the character and elegance of the home.

Set on a quiet, tree-lined street, Landseer Road offers privacy while remaining well-connected. Local transport links include Upper Holloway Overground Station and Archway Northern Line Station, providing excellent access to central London.

The area benefits from green spaces, including Waterlow Park, Finsbury Park, Whittington Park, and Landseer Gardens with a playground, as well as strong bus and cycle routes offering direct access to Islington, Angel, Camden, and onwards to King’s Cross. Local amenities are abundant, with shops, cafés, and services available in Archway, Tufnell Park, Highgate, Crouch End, and Islington.

This substantial family home is offered chain-free and presents a rare opportunity in a sought-after North London location. A viewing is highly recommended.

  • Freehold / chain free
  • 1104 sq ft / 102.5 sq m
  • South-facing garden
  • 4 double bedrooms
  • Dual-aspect living / dining room
  • Period features
  • Separate kitchen / reception room
  • Good transport links
Floorplan for Landseer Road, London, N19
EPC Graph for Landseer Road, London, N19

Material Information

  • Tenure: Freehold
  • Local Authority: Islington
  • Council Tax Band: E
  • Water Supply: Direct Main Waters
  • Electricity Supply: National Grid
  • Sewerage: Standard
  • Heating Supply: Gas Central
  • Construction Materials: Brick And Block
  • Roof Material: Slate Tiles
  • Is Roof Renovated: 1
  • Is Loft Boarded: Partially
  • Broadband: FTTP (fibre to the premises)
  • Mobile Coverage: Good
  • Outside Space: Type - Garden
  • Outside Space: Orientation - S
  • Parking: Parking Space Type - Permit
  • Parking: Capacity - 1
  • Parking: Description - On-Street, Council Permit Parking
  • All Others: Ask Agent

Viewing


  • Freehold / chain free
  • 1104 sq ft / 102.5 sq m
  • South-facing garden
  • 4 double bedrooms
  • Dual-aspect living / dining room
  • Period features
  • Separate kitchen / reception room
  • Good transport links

Free property valuation


With three local offices we have unrivalled market knowledge. A senior member of the David Andrew team will come to your property to provide an accurate sales valuation or rental valuation and offer comparable properties we have sold in order to justify our valuation and to show how we can achieve you the best possible price.


Register with us


Register today to receive instant alerts when we add properties that match your requirements.