Hill Street, London, W1J

£3,272 pcm

A bright and spacious, modern one bedroom ground floor apartment located on one of Mayfair’s most prestigious roads is now available to rent.

The apartment is set 296 sq ft. and offers a double bedroom, modern fitted bathroom, spacious reception room, modern fitted kitchen and ample storage space and access to a private gated communal garden. 39 Hill Street, benefits from spacious living accommodation, lift service, on-site building manager, and is nestled conveniently between near Hyde Park and Green Park.

A bright and spacious, modern one bedroom ground floor apartment located on one of Mayfair’s most prestigious roads is now available to rent.

The apartment is set 296 sq ft. and offers a double bedroom, modern fitted bathroom, spacious reception room, modern fitted kitchen and ample storage space and access to a private gated communal garden. 39 Hill Street, benefits from spacious living accommodation, lift service, on-site building manager, and is nestled conveniently between near Hyde Park and Green Park.

  • One bedroom apartment
  • Available from December 4th
  • Available furnished or unfurnished
  • Close proximity to Green Park and Hyde Park
  • Access to gated communal garden
  • 24 hour onsite maintenance service & Concierge
  • Multiple apartments available
  • Flexible rental terms
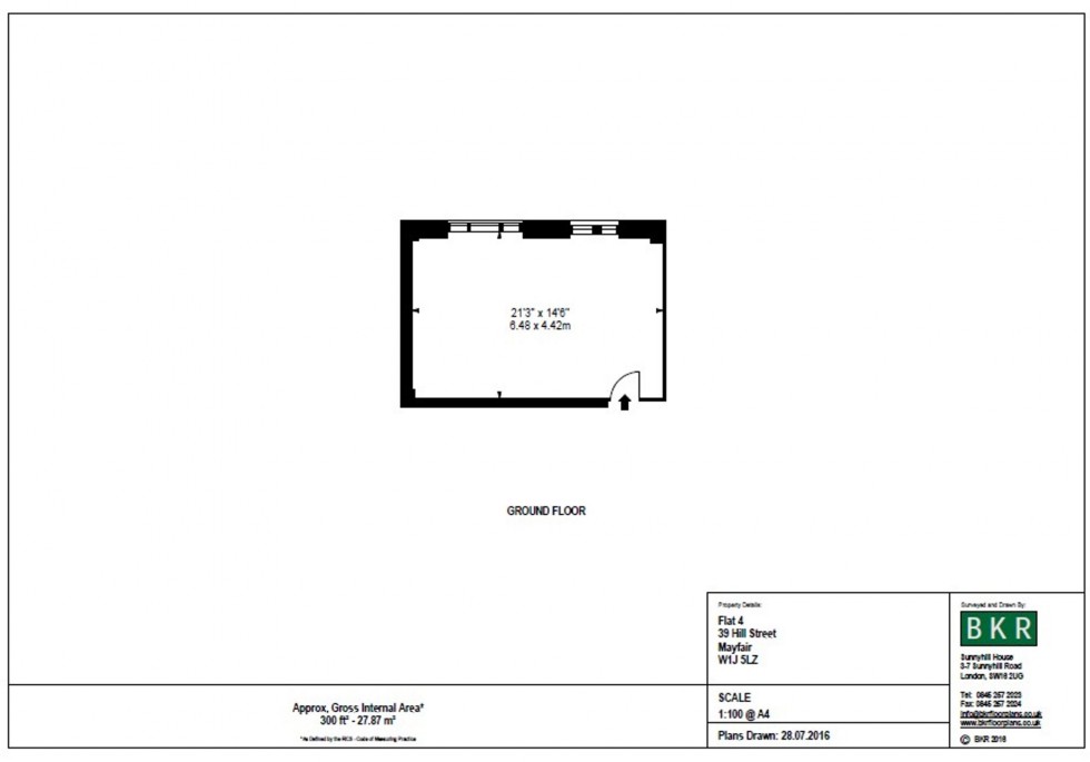
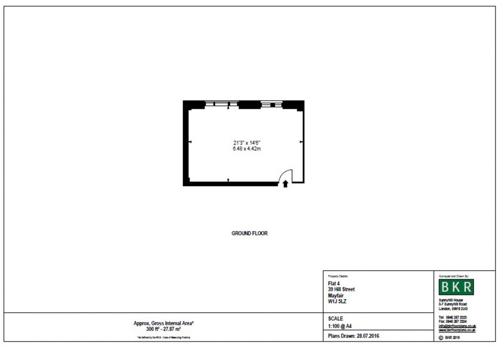
Floorplan for Hill Street, London, W1J
EPC Graph for Hill Street, London, W1J

Material Information

  • Local Authority: Westminster
  • Council Tax Band: E
  • Outside Space: Type - Communal Garden
  • Outside Space: Description - Access To Private Gated Residents Communal Garden
  • All Others: Ask Agent

Viewing


  • One bedroom apartment
  • Available from December 4th
  • Available furnished or unfurnished
  • Close proximity to Green Park and Hyde Park
  • Access to gated communal garden
  • 24 hour onsite maintenance service & Concierge
  • Multiple apartments available
  • Flexible rental terms

Free property valuation


With three local offices we have unrivalled market knowledge. A senior member of the David Andrew team will come to your property to provide an accurate sales valuation or rental valuation and offer comparable properties we have sold in order to justify our valuation and to show how we can achieve you the best possible price.


Register with us


Register today to receive instant alerts when we add properties that match your requirements.