Digby Crescent, London, N4 (Share of Freehold)

Guide Price, £895,000

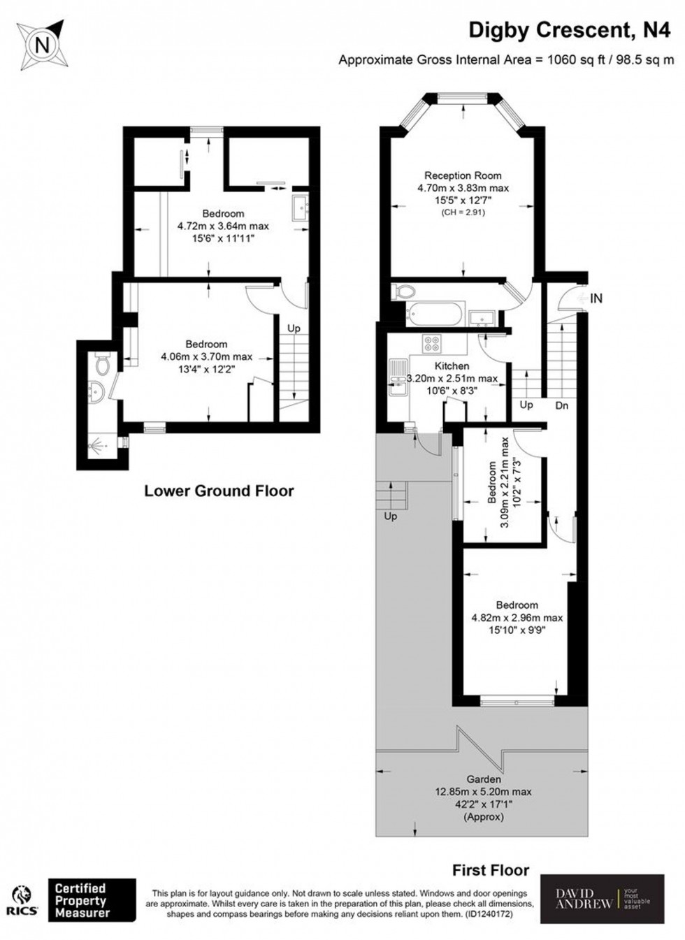
Introducing a beautifully presented four-bedroom period conversion with a spacious private garden, set across two levels of a Victorian terrace on a sought-after street in N4. Spanning over 1,060 sq ft (98.5 sq m), this charming home effortlessly blends original character with modern comfort. The reception room features elegant shutters and large bay windows, providing the perfect space to relax, dine or entertain.

On the raised ground floor, you'll find a well-appointed modern kitchen with ample worktop and storage space, opening directly onto a private garden measuring approximately 12.85m x 5.20m. This level also offers two decent-sized bedrooms and a modern family bathroom. The lower ground floor hosts two generously sized double bedrooms and an en-suite bathroom.

Set on the quiet and leafy Digby Crescent, you're just a short walk from Finsbury Park, Clissold Park, and the lively amenities of Stoke Newington Church Street, Green Lanes, and Highbury. Excellent transport links nearby include Finsbury Park Station (Victoria & Piccadilly Lines, National Rail) and numerous bus routes, as well as close to excellent schools.

Introducing a beautifully presented four-bedroom period conversion with a spacious private garden, set across two levels of a Victorian terrace on a sought-after street in N4. Spanning over 1,060 sq ft (98.5 sq m), this charming home effortlessly blends original character with modern comfort. The reception room features elegant shutters and large bay windows, providing the perfect space to relax, dine or entertain.

On the raised ground floor, you'll find a well-appointed modern kitchen with ample worktop and storage space, opening directly onto a private garden measuring approximately 12.85m x 5.20m. This level also offers two decent-sized bedrooms and a modern family bathroom. The lower ground floor hosts two generously sized double bedrooms and an en-suite bathroom.

Set on the quiet and leafy Digby Crescent, you're just a short walk from Finsbury Park, Clissold Park, and the lively amenities of Stoke Newington Church Street, Green Lanes, and Highbury. Excellent transport links nearby include Finsbury Park Station (Victoria & Piccadilly Lines, National Rail) and numerous bus routes, as well as close to excellent schools.

  • 1060 sq ft / 98.5 sq m
  • Private Spacious Garden
  • Split level
  • Four Double-Bedrooms
  • Two Bathrooms
  • Spacious Reception Room with bay windows and original features
  • Excellent Location in N4, close to Finsbury Park and Clissold Park
  • Amazing Transport Links
Floorplan for Digby Crescent, London, N4
EPC Graph for Digby Crescent, London, N4

Material Information

  • Tenure: Share of Freehold
  • Council Tax Band: C
  • Outside Space: Type - Garden
  • Outside Space: Description - Large And Spacious Garden Filled With Natural Light, South Facing.
  • Outside Space: Length - 1285
  • Outside Space: Orientation - S
  • All Others: Ask Agent

Viewing


  • 1060 sq ft / 98.5 sq m
  • Private Spacious Garden
  • Split level
  • Four Double-Bedrooms
  • Two Bathrooms
  • Spacious Reception Room with bay windows and original features
  • Excellent Location in N4, close to Finsbury Park and Clissold Park
  • Amazing Transport Links

Free property valuation


With three local offices we have unrivalled market knowledge. A senior member of the David Andrew team will come to your property to provide an accurate sales valuation or rental valuation and offer comparable properties we have sold in order to justify our valuation and to show how we can achieve you the best possible price.


Register with us


Register today to receive instant alerts when we add properties that match your requirements.