Berkshire Gardens, London, N13 (Freehold)

Guide Price, £700,000

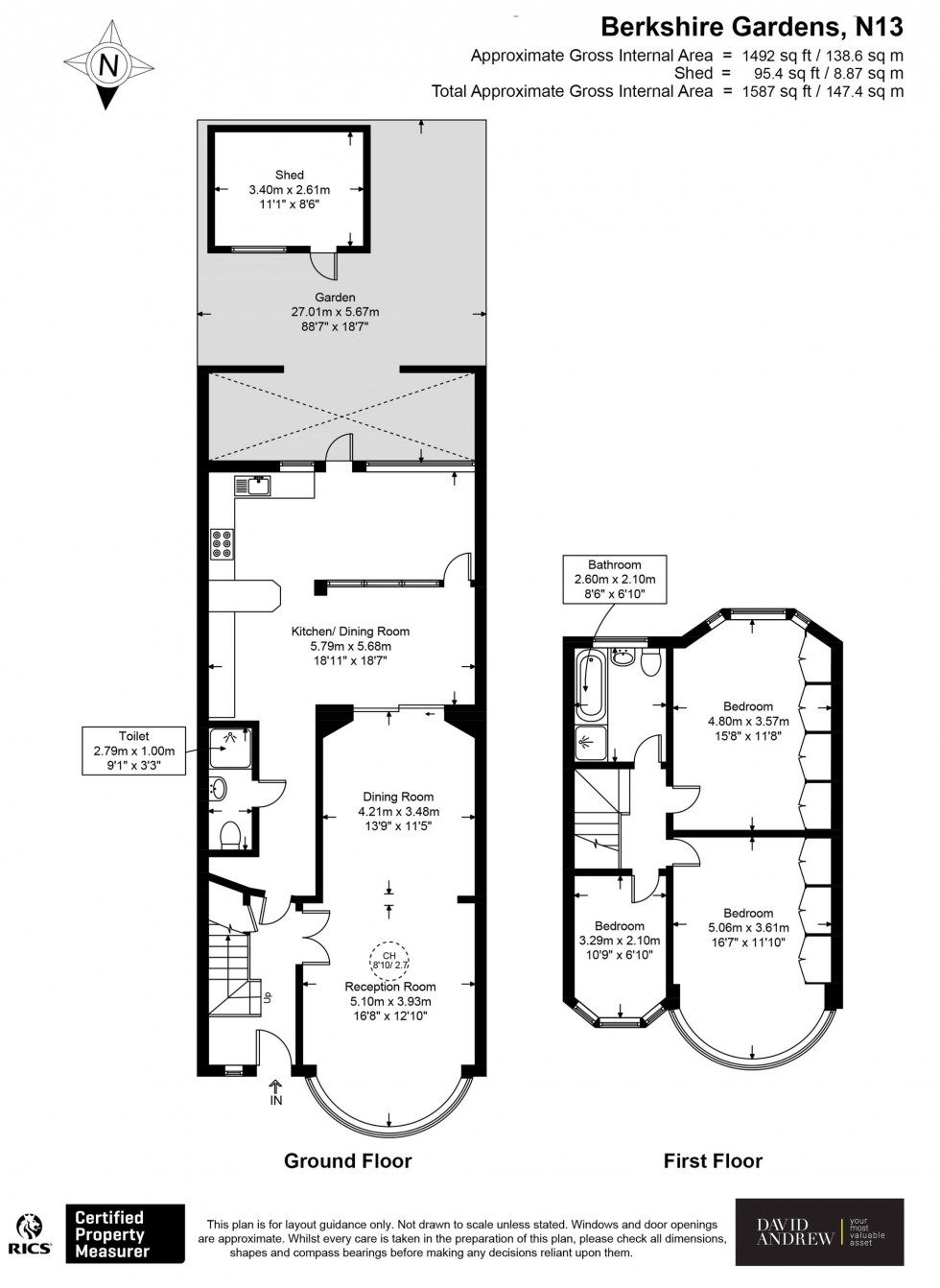
A wonderful example of a much-loved family home, this bay-fronted Edwardian mid-terrace house offers a combined 1,587 sq ft (147.4 sq m) of space and is located just off Green Lanes, close to Palmers Green and the borders of Woodgreen.

This property presents a rare opportunity to acquire what is essentially a “time capsule” home, full of character and ready for the next chapter. It features a generous front garden and an inviting, spacious hallway with double French doors leading through to a bright through-reception room. To the rear is a large kitchen-dining area, along with a ground-floor cloakroom and shower room. A substantial lean-to at the back provides useful covered space and leads out to a superb 88-foot south-facing rear garden, creating a particularly impressive ground-floor layout ideal for family living.

The upper levels provide two evenly sized principal bedrooms with impressive bay windows, along with a third bedroom which would work perfectly as a child’s room, study, or guest space. A family bathroom completes the accommodation.

The property would benefit from modernisation but offers excellent potential to extend to the rear or convert the loft space, subject to the usual planning permissions, allowing a buyer to create a truly exceptional long-term home.

Location

Positioned on a quiet one-way residential road just off Green Lanes, the property enjoys easy access to a wide selection of local cafés, restaurants, and independent shops in Palmers Green and nearby Woodgreen.

For commuters, Palmers Green Station provides direct services to Moorgate, making it a convenient option for access into central London. The area is also well served by local bus routes along Green Lanes.

Schools

The property is well placed for several well-regarded schools in the area, making it an attractive option for families looking to settle in this established residential neighbourhood.

Overall, this is a rare opportunity to acquire a characterful Edwardian home with significant potential, a superb south-facing garden, and a highly convenient location.

A wonderful example of a much-loved family home, this bay-fronted Edwardian mid-terrace house offers a combined 1,587 sq ft (147.4 sq m) of space and is located just off Green Lanes, close to Palmers Green and the borders of Woodgreen.

This property presents a rare opportunity to acquire what is essentially a “time capsule” home, full of character and ready for the next chapter. It features a generous front garden and an inviting, spacious hallway with double French doors leading through to a bright through-reception room. To the rear is a large kitchen-dining area, along with a ground-floor cloakroom and shower room. A substantial lean-to at the back provides useful covered space and leads out to a superb 88-foot south-facing rear garden, creating a particularly impressive ground-floor layout ideal for family living.

The upper levels provide two evenly sized principal bedrooms with impressive bay windows, along with a third bedroom which would work perfectly as a child’s room, study, or guest space. A family bathroom completes the accommodation.

The property would benefit from modernisation but offers excellent potential to extend to the rear or convert the loft space, subject to the usual planning permissions, allowing a buyer to create a truly exceptional long-term home.

Location

Positioned on a quiet one-way residential road just off Green Lanes, the property enjoys easy access to a wide selection of local cafés, restaurants, and independent shops in Palmers Green and nearby Woodgreen.

For commuters, Palmers Green Station provides direct services to Moorgate, making it a convenient option for access into central London. The area is also well served by local bus routes along Green Lanes.

Schools

The property is well placed for several well-regarded schools in the area, making it an attractive option for families looking to settle in this established residential neighbourhood.

Overall, this is a rare opportunity to acquire a characterful Edwardian home with significant potential, a superb south-facing garden, and a highly convenient location.

  • Attractive bay-fronted Edwardian mid-terrace family home
  • Generous 1,587 sq ft (147.4 sq m) of internal living space
  • Spacious through-reception room with period detailing
  • Large kitchen dining area ideal for family living and entertaining
  • Impressive 88 ft south-facing rear garden
  • Three well-proportioned bedrooms including two principal rooms with bay windows
  • Excellent potential to extend or convert the loft (STPP)
  • Quiet residential one-way road just off Green Lanes, close to Palmers Green Station with direct links to Moorgate
  • Chain Free / Freehold / EPC Rating C / Double glazed
Floorplan for Berkshire Gardens, London, N13
EPC Graph for Berkshire Gardens, London, N13

Material Information

  • Tenure: Freehold
  • Local Authority: Enfield Council
  • Council Tax Band: E
  • Water Supply: Direct Main Waters
  • Electricity Supply: National Grid
  • Sewerage: Standard
  • Heating Supply: Gas Central
  • Construction Materials: Brick And Block
  • Roof Material: Clay Tiles
  • Is Loft Boarded: No
  • Outside Space: Type - Garden
  • Outside Space: Orientation - S
  • Parking: Parking Space Type - On Street
  • Parking: Capacity - 1
  • All Others: Ask Agent

Viewing


  • Attractive bay-fronted Edwardian mid-terrace family home
  • Generous 1,587 sq ft (147.4 sq m) of internal living space
  • Spacious through-reception room with period detailing
  • Large kitchen dining area ideal for family living and entertaining
  • Impressive 88 ft south-facing rear garden
  • Three well-proportioned bedrooms including two principal rooms with bay windows
  • Excellent potential to extend or convert the loft (STPP)
  • Quiet residential one-way road just off Green Lanes, close to Palmers Green Station with direct links to Moorgate
  • Chain Free / Freehold / EPC Rating C / Double glazed

Free property valuation


With three local offices we have unrivalled market knowledge. A senior member of the David Andrew team will come to your property to provide an accurate sales valuation or rental valuation and offer comparable properties we have sold in order to justify our valuation and to show how we can achieve you the best possible price.


Register with us


Register today to receive instant alerts when we add properties that match your requirements.