Bracey Street, London, N4 (Freehold)

Guide Price, £1,100,000

An attractive mid-terrace four-bedroom Victorian house, offered to the market for the first time in over 30 years and clearly cherished and thoughtfully improved by the current owners. The property retains a wealth of charm, with a particularly appealing Victorian frontage adorned with mature wisteria.

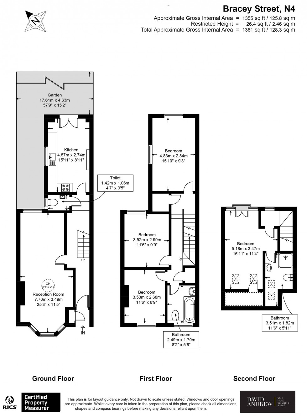
The ground floor offers a welcoming double reception room with wooden flooring, a period fireplace and an elegant bay window that fills the space with natural light. To the rear is a generous kitchen–breakfast room featuring a range of white wall and base units with wooden work surfaces. Large French doors frame the view of the delightful rear garden and provide wonderful natural light, creating an ideal space for everyday living and entertaining.

The first floor provides three well-proportioned bedrooms, and a family bathroom. Stairs lead to the converted loft where the principal bedroom enjoys excellent natural light from multiple Velux windows and French doors opening to a Juliette balcony with elevated views across the park. The room also benefits from an en-suite shower room and offers an architecturally interesting and peaceful retreat.

One of the most appealing aspects of this warm and inviting home is the outlook at the rear, which overlooks the green open space of Wray Crescent. This attractive backdrop creates a rare sense of openness and tranquillity, giving the impression of being far removed from the bustle of London. Internal viewing is highly recommended to fully appreciate the charm, light and setting of this lovely family home.

Location
Bracey Street is a quiet residential no - through road, ideally positioned in the heart of Stroud Green, a popular North London neighbourhood known for its vibrant community atmosphere and excellent local amenities. The nearby Stroud Green and Hornsey Road offers an array of independent cafés, restaurants, bakeries and shops, creating a lively yet welcoming feel.

The property is also well located for transport connections, with Finsbury Park Station within easy reach, providing excellent Underground, National Rail and bus links into Central London and beyond. Green spaces are plentiful in the area, with Finsbury Park and Parkland Walk nearby, offering scenic walking and cycling routes. The outlook over Wray Crescent open space further enhances the sense of greenery and tranquillity that makes this location particularly special.

An attractive mid-terrace four-bedroom Victorian house, offered to the market for the first time in over 30 years and clearly cherished and thoughtfully improved by the current owners. The property retains a wealth of charm, with a particularly appealing Victorian frontage adorned with mature wisteria.

The ground floor offers a welcoming double reception room with wooden flooring, a period fireplace and an elegant bay window that fills the space with natural light. To the rear is a generous kitchen–breakfast room featuring a range of white wall and base units with wooden work surfaces. Large French doors frame the view of the delightful rear garden and provide wonderful natural light, creating an ideal space for everyday living and entertaining.

The first floor provides three well-proportioned bedrooms, and a family bathroom. Stairs lead to the converted loft where the principal bedroom enjoys excellent natural light from multiple Velux windows and French doors opening to a Juliette balcony with elevated views across the park. The room also benefits from an en-suite shower room and offers an architecturally interesting and peaceful retreat.

One of the most appealing aspects of this warm and inviting home is the outlook at the rear, which overlooks the green open space of Wray Crescent. This attractive backdrop creates a rare sense of openness and tranquillity, giving the impression of being far removed from the bustle of London. Internal viewing is highly recommended to fully appreciate the charm, light and setting of this lovely family home.

Location
Bracey Street is a quiet residential no - through road, ideally positioned in the heart of Stroud Green, a popular North London neighbourhood known for its vibrant community atmosphere and excellent local amenities. The nearby Stroud Green and Hornsey Road offers an array of independent cafés, restaurants, bakeries and shops, creating a lively yet welcoming feel.

The property is also well located for transport connections, with Finsbury Park Station within easy reach, providing excellent Underground, National Rail and bus links into Central London and beyond. Green spaces are plentiful in the area, with Finsbury Park and Parkland Walk nearby, offering scenic walking and cycling routes. The outlook over Wray Crescent open space further enhances the sense of greenery and tranquillity that makes this location particularly special.

  • Attractive mid-terrace four-bedroom Victorian house
  • First time on the market in over 30 years
  • Charming Victorian frontage with mature wisteria
  • Double reception room with wooden floors, period fireplace and bay window
  • Bright kitchen–breakfast room with French doors opening to the rear garden
  • Four well-proportioned bedrooms including a loft-conversion principal suite with en-suite
  • Wonderful rear outlook over Wray Crescent open space creating a rare green backdrop
Floorplan for Bracey Street, London, N4
EPC Graph for Bracey Street, London, N4

Material Information

  • Tenure: Freehold
  • Local Authority: Islington
  • Council Tax Band: E
  • Water Supply: Direct Main Waters
  • Electricity Supply: National Grid
  • Sewerage: Standard
  • Heating Supply: Gas Central
  • Construction Materials: Brick And Block
  • Construction Materials: Timber Frame
  • Roof Material: Slate Tiles
  • Roof Material: Flat
  • Is Loft Boarded: No
  • Outside Space: Type - Garden
  • Parking: Parking Space Type - Permit
  • Parking: Capacity - 1
  • Parking: Description - Resident's And Visitor Parking Permits Available Via The Local Authority
  • All Others: Ask Agent

Viewing


  • Attractive mid-terrace four-bedroom Victorian house
  • First time on the market in over 30 years
  • Charming Victorian frontage with mature wisteria
  • Double reception room with wooden floors, period fireplace and bay window
  • Bright kitchen–breakfast room with French doors opening to the rear garden
  • Four well-proportioned bedrooms including a loft-conversion principal suite with en-suite
  • Wonderful rear outlook over Wray Crescent open space creating a rare green backdrop

Free property valuation


With three local offices we have unrivalled market knowledge. A senior member of the David Andrew team will come to your property to provide an accurate sales valuation or rental valuation and offer comparable properties we have sold in order to justify our valuation and to show how we can achieve you the best possible price.


Register with us


Register today to receive instant alerts when we add properties that match your requirements.