Chatterton Road, London, N4

£4,750 pcm

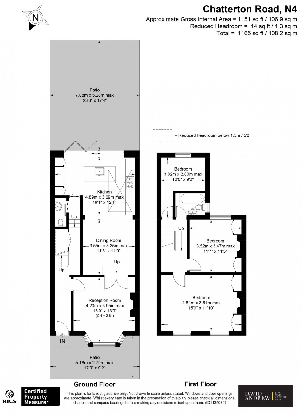
A truly beautifully presented three-bedroom Victorian family house for rent on a quiet, sought-after Road in Highbury N5.Offering 1165 sq.ft /108 sqm of internal living space. The ground floor comprises two double reception rooms, large bay windows with wooden shutters, and original wooden flooring. At the rear of the ground floor is a large bright kitchen extension with a glass ceiling plus a central island, perfect for entertaining, overlooking the stunning landscape garden through bi-folding doors, allowing plenty of natural light to flow. The upper parts include three bedrooms and a fully tiled family bathroom with bath and shower facilities.This property is an excellent example of modern design blending seamlessly with the period features, offering a welcoming feel for any family looking to be in a quiet and well-kept house in Highbury in catchment to popular schools locally including Highbury Vale.Chatterton Road is a desirable, quiet street in close proximity to lo
A truly beautifully presented three-bedroom Victorian family house for rent on a quiet, sought-after Road in Highbury N5.Offering 1165 sq.ft /108 sqm of internal living space. The ground floor comprises two double reception rooms, large bay windows with wooden shutters, and original wooden flooring. At the rear of the ground floor is a large bright kitchen extension with a glass ceiling plus a central island, perfect for entertaining, overlooking the stunning landscape garden through bi-folding doors, allowing plenty of natural light to flow. The upper parts include three bedrooms and a fully tiled family bathroom with bath and shower facilities.This property is an excellent example of modern design blending seamlessly with the period features, offering a welcoming feel for any family looking to be in a quiet and well-kept house in Highbury in catchment to popular schools locally including Highbury Vale.Chatterton Road is a desirable, quiet street in close proximity to lo
  • Glass top kitchen extension
  • High spec finish
  • unfurnished /Part furnished
  • Presented in excellent condition
  • Three bedroom Victorian house
  • Private landscape garden
  • Bi-folding doors / sky lights
  • 1165 sq.ft / 108 Sqm
Floorplan for Chatterton Road, London, N4

Material Information

  • Local Authority: islington
  • Is Loft Boarded: No
  • All Others: Ask Agent

Viewing


  • Glass top kitchen extension
  • High spec finish
  • unfurnished /Part furnished
  • Presented in excellent condition
  • Three bedroom Victorian house
  • Private landscape garden
  • Bi-folding doors / sky lights
  • 1165 sq.ft / 108 Sqm

Free property valuation


With three local offices we have unrivalled market knowledge. A senior member of the David Andrew team will come to your property to provide an accurate sales valuation or rental valuation and offer comparable properties we have sold in order to justify our valuation and to show how we can achieve you the best possible price.


Register with us


Register today to receive instant alerts when we add properties that match your requirements.