Stapleton Hall Road, London, N4 (Share of Freehold)

Guide Price, £550,000

A beautifully presented and larger than average, one bedroom garden flat set within an attractive period conversion, offering a wonderful blend of character and contemporary finish.

Occupying the ground floor, this charming home boasts high ceilings and an abundance of natural light throughout. The spacious reception room is tastefully decorated and well-proportioned, creating an inviting living and dining space. The separate kitchen is thoughtfully designed and finished to an excellent standard.

The generous double bedroom retains attractive original period details, adding warmth and character to the space while providing a calm and comfortable retreat, with access to the front garden.

A true highlight is the private south facing garden - a rare and highly desirable feature, ideal for entertaining, relaxing or enjoying warmer months.

The flat is offered in excellent condition throughout and benefits from a share of freehold, providing added security and long-term value. Ideally positioned close to local amenities, transport links and green spaces, this is a superb opportunity for first-time buyers, downsizers or investors alike.

A beautifully presented and larger than average, one bedroom garden flat set within an attractive period conversion, offering a wonderful blend of character and contemporary finish.

Occupying the ground floor, this charming home boasts high ceilings and an abundance of natural light throughout. The spacious reception room is tastefully decorated and well-proportioned, creating an inviting living and dining space. The separate kitchen is thoughtfully designed and finished to an excellent standard.

The generous double bedroom retains attractive original period details, adding warmth and character to the space while providing a calm and comfortable retreat, with access to the front garden.

A true highlight is the private south facing garden - a rare and highly desirable feature, ideal for entertaining, relaxing or enjoying warmer months.

The flat is offered in excellent condition throughout and benefits from a share of freehold, providing added security and long-term value. Ideally positioned close to local amenities, transport links and green spaces, this is a superb opportunity for first-time buyers, downsizers or investors alike.

  • Share of Freehold
  • Private South Facing Garden
  • Original Features
  • Excellent Condition
  • Desirable Location
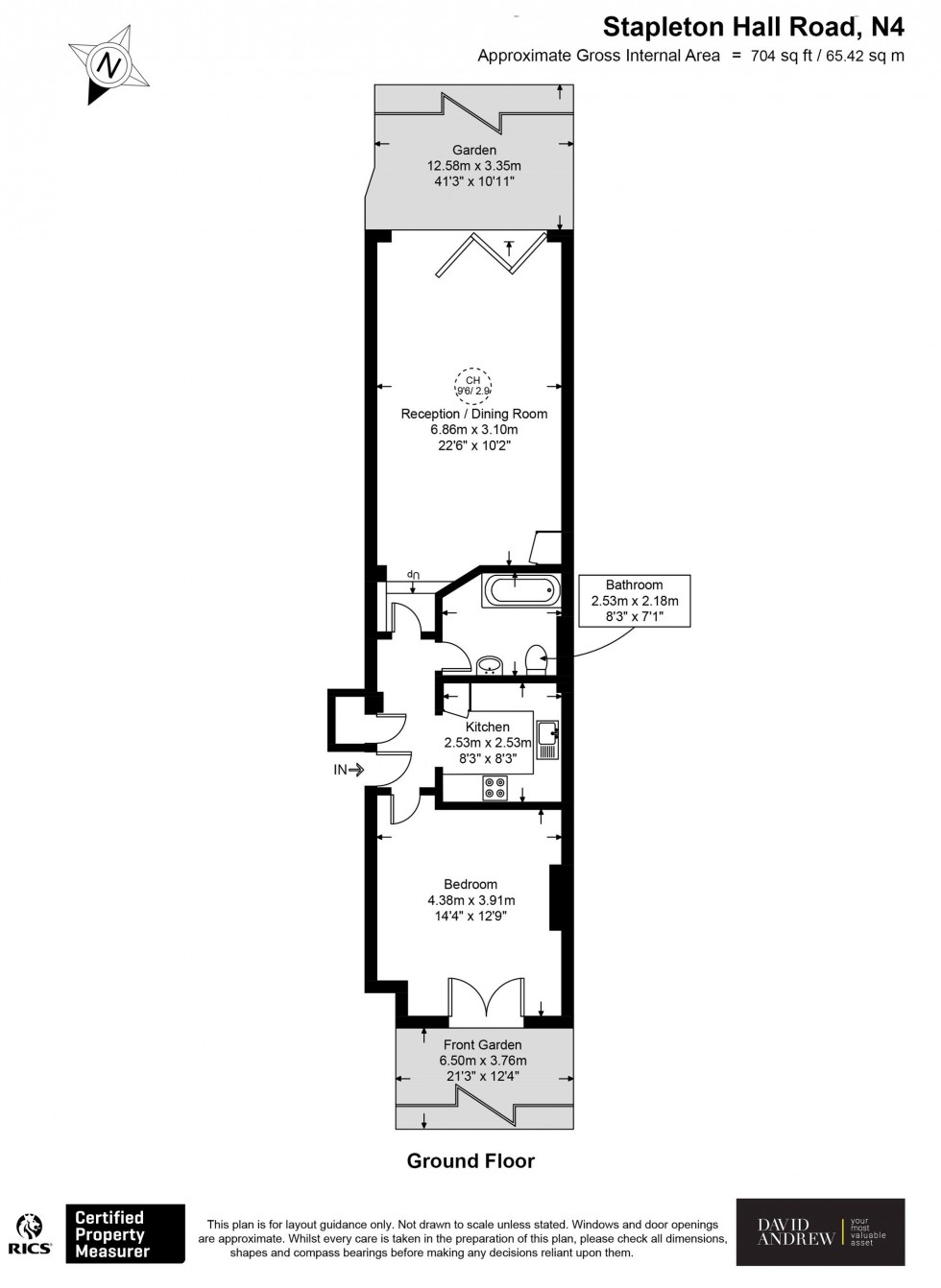
  • 704sqft / 65sqm
Floorplan for Stapleton Hall Road, London, N4
EPC Graph for Stapleton Hall Road, London, N4

Material Information

  • Tenure: Share of Freehold
  • Local Authority: Haringey Council
  • Council Tax Band: B
  • Service Charge : £40.00
  • Service Charge Period: Month
  • Water Supply: Direct Main Waters
  • Electricity Supply: National Grid
  • Sewerage: Standard
  • Heating Supply: Gas Central
  • Construction Materials: Brick And Block
  • Is Loft Boarded: No
  • Outside Space: Type - Garden
  • All Others: Ask Agent

Viewing


  • Share of Freehold
  • Private South Facing Garden
  • Original Features
  • Excellent Condition
  • Desirable Location
  • 704sqft / 65sqm

Free property valuation


With three local offices we have unrivalled market knowledge. A senior member of the David Andrew team will come to your property to provide an accurate sales valuation or rental valuation and offer comparable properties we have sold in order to justify our valuation and to show how we can achieve you the best possible price.


Register with us


Register today to receive instant alerts when we add properties that match your requirements.