Sussex Way, London, N7 (Leasehold)

Guide Price, £400,000

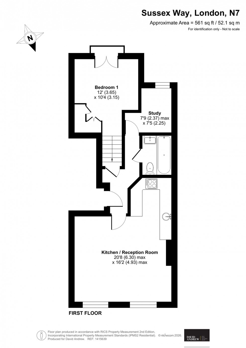
We are delighted to offer this stunning, chain-free first floor flat located on Sussex Way, N7. Forming part of an exclusive new conversion, the property offers approximately 561 sq ft / 52.1 sq m of beautifully presented living space with viewing being highly recommended. Although initially offered with a leasehold tenure, the flats will enjoy a share of freehold once all three units in the building have been sold.

The accommodation comprises one double bedroom, study, family bathroom and an open-plan kitchen reception offering plenty of space for both relaxing and entertaining. The property further benefits from lots of natural light and double-glazed windows throughout.

Sussex Way is well-positioned for great transport links. Nearby Holloway Road and Arsenal Underground Stations provide access to the Piccadilly Line, while Finsbury Park Station offers Piccadilly and Victoria Line services, as well as Great Northern and Thameslink connections, providing convenient access across London and beyond.

This property is an exceptional opportunity within a vibrant location and represents a perfect blend of contemporary living, space, and connectivity.

We are delighted to offer this stunning, chain-free first floor flat located on Sussex Way, N7. Forming part of an exclusive new conversion, the property offers approximately 561 sq ft / 52.1 sq m of beautifully presented living space with viewing being highly recommended. Although initially offered with a leasehold tenure, the flats will enjoy a share of freehold once all three units in the building have been sold.

The accommodation comprises one double bedroom, study, family bathroom and an open-plan kitchen reception offering plenty of space for both relaxing and entertaining. The property further benefits from lots of natural light and double-glazed windows throughout.

Sussex Way is well-positioned for great transport links. Nearby Holloway Road and Arsenal Underground Stations provide access to the Piccadilly Line, while Finsbury Park Station offers Piccadilly and Victoria Line services, as well as Great Northern and Thameslink connections, providing convenient access across London and beyond.

This property is an exceptional opportunity within a vibrant location and represents a perfect blend of contemporary living, space, and connectivity.

  • 561 sq ft / 52.1 sq m
  • New development
  • One double bedroom
  • Open plan kitchen / reception
  • Modern family bathroom
  • Study
  • Great transport links
  • Chain free
Floorplan for Sussex Way, London, N7

Material Information

  • Tenure: Leasehold
  • Local Authority: Islington
  • Council Tax Band: C
  • Is Loft Boarded: No
  • Parking: Parking Space Type - On Street
  • Parking: Capacity - 1
  • Parking: Description - On Street, Permit Parking.
  • All Others: Ask Agent

Viewing


  • 561 sq ft / 52.1 sq m
  • New development
  • One double bedroom
  • Open plan kitchen / reception
  • Modern family bathroom
  • Study
  • Great transport links
  • Chain free

Free property valuation


With three local offices we have unrivalled market knowledge. A senior member of the David Andrew team will come to your property to provide an accurate sales valuation or rental valuation and offer comparable properties we have sold in order to justify our valuation and to show how we can achieve you the best possible price.


Register with us


Register today to receive instant alerts when we add properties that match your requirements.