Crouch Hill N4 4AJ (Share of Freehold)

Guide Price, £925,000

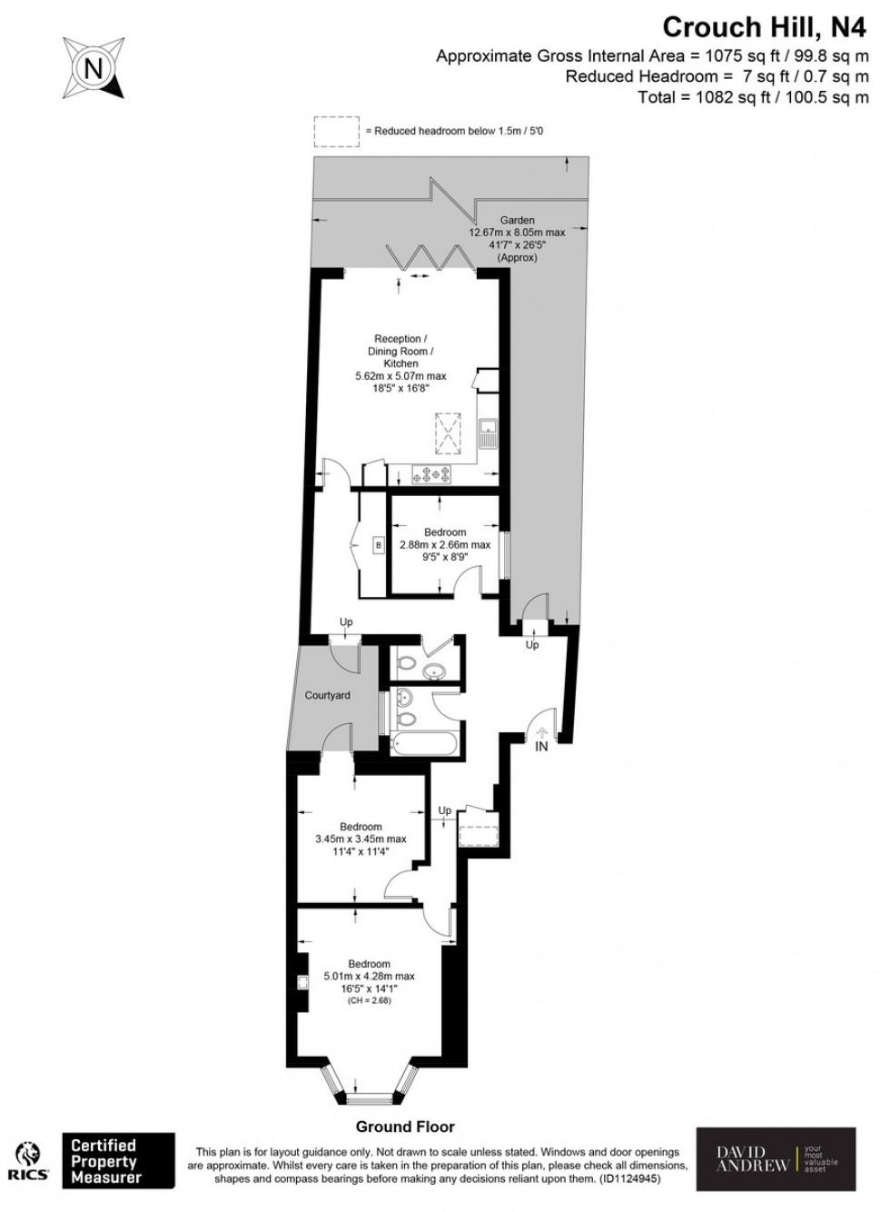
We are delighted to offer this exceptional three double-bedroom apartment, boasting 1,075 SQ FT of newly converted lateral living space, ready for its first occupants. Thoughtfully designed by the current owner with both design and function in mind, this home delivers everything you need for contemporary living.

The flat benefits from its own private entrance, leading into a bright, welcoming foyer and central hallway which provides access to all rooms and offers two convenient storage cupboards. First, you'll find a sleek and modern family bathroom, complete with high-quality fixtures and a bath/shower combination, further along the hallway, an additional guest WC further enhances convenience. The flat boasts three double bedrooms, each designed to offer exceptional versatility and can easily adapt to the evolving needs of modern living, whether you're working from home, accommodating guests, or the arrival of a new family member.
The heart of the home is the stunning open-plan kitchen and reception room, offering a vast space designed for both entertaining and relaxing. The kitchen features modern, neutral décor, with ample counter space, custom cabinetry, and high-end integrated appliances. A large skylight further enhances the bright, airy ambiance of the space. The reception area is large enough to comfortably accommodate separate dining and living zones, ideal for hosting or enjoying family time. Full-width folding doors flood the space with natural light and open directly onto the private, south-west-facing garden. Paved for easy maintenance and enhanced by raised flowerbeds - perfect for alfresco dining, or simply relaxing in the sun.

The flat also has the potential for off-street parking for one car at the front of the building.

Located on Crouch Hill, equidistant between Finsbury Park station (Victoria & Piccadilly lines, National Rail & Thameslink services) and Crouch End, and only a stone's throw from Crouch Hill Overground, this apartment offers an excellent array of local bars, restaurants, and shopping amenities. The popular Parkland Walk nature reserve is just a couple of minutes' walk away, perfect for dog walking, jogging, or an enjoyable stroll. Additionally, the flat is within the catchment of several sought-after schools and nurseries.

NB. Photos have been virtually staged to demonstrate how the space may be arranged. Share of Freehold will be issued when all three units have been sold.

Tenure - Share of Freehold, new lease 999 years
Ground rent - not collected
Service charge - ad hoc arrangement
Council tax TBC
We are delighted to offer this exceptional three double-bedroom apartment, boasting 1,075 SQ FT of newly converted lateral living space, ready for its first occupants. Thoughtfully designed by the current owner with both design and function in mind, this home delivers everything you need for contemporary living.

The flat benefits from its own private entrance, leading into a bright, welcoming foyer and central hallway which provides access to all rooms and offers two convenient storage cupboards. First, you'll find a sleek and modern family bathroom, complete with high-quality fixtures and a bath/shower combination, further along the hallway, an additional guest WC further enhances convenience. The flat boasts three double bedrooms, each designed to offer exceptional versatility and can easily adapt to the evolving needs of modern living, whether you're working from home, accommodating guests, or the arrival of a new family member.
The heart of the home is the stunning open-plan kitchen and reception room, offering a vast space designed for both entertaining and relaxing. The kitchen features modern, neutral décor, with ample counter space, custom cabinetry, and high-end integrated appliances. A large skylight further enhances the bright, airy ambiance of the space. The reception area is large enough to comfortably accommodate separate dining and living zones, ideal for hosting or enjoying family time. Full-width folding doors flood the space with natural light and open directly onto the private, south-west-facing garden. Paved for easy maintenance and enhanced by raised flowerbeds - perfect for alfresco dining, or simply relaxing in the sun.

The flat also has the potential for off-street parking for one car at the front of the building.

Located on Crouch Hill, equidistant between Finsbury Park station (Victoria & Piccadilly lines, National Rail & Thameslink services) and Crouch End, and only a stone's throw from Crouch Hill Overground, this apartment offers an excellent array of local bars, restaurants, and shopping amenities. The popular Parkland Walk nature reserve is just a couple of minutes' walk away, perfect for dog walking, jogging, or an enjoyable stroll. Additionally, the flat is within the catchment of several sought-after schools and nurseries.

NB. Photos have been virtually staged to demonstrate how the space may be arranged. Share of Freehold will be issued when all three units have been sold.

Tenure - Share of Freehold, new lease 999 years
Ground rent - not collected
Service charge - ad hoc arrangement
Council tax TBC
  • Chain free sale
  • Newly converted ground floor flat
  • Three bedrooms
  • 1075 SQ FT - 99.8 SQ M
  • Modern bathroom & additional WC
  • Ample storage
  • Fully double glazed - EPC C |
  • Private, south-west facing garden
  • Off street parking
  • Own entrance
Floorplan for Crouch Hill N4 4AJ
EPC Graph for Crouch Hill N4 4AJ

Viewing


Stroud Green office
(0)207 281 2000
Email
  • Chain free sale
  • Newly converted ground floor flat
  • Three bedrooms
  • 1075 SQ FT - 99.8 SQ M
  • Modern bathroom & additional WC
  • Ample storage
  • Fully double glazed - EPC C |
  • Private, south-west facing garden
  • Off street parking
  • Own entrance

Free property valuation


With three local offices we have unrivalled market knowledge. A senior member of the David Andrew team will come to your property to provide an accurate sales valuation or rental valuation and offer comparable properties we have sold in order to justify our valuation and to show how we can achieve you the best possible price.


Register with us


Register today to receive instant alerts when we add properties that match your requirements.