Endymion Road N4 1EE (Leasehold)

Guide Price, £675,000

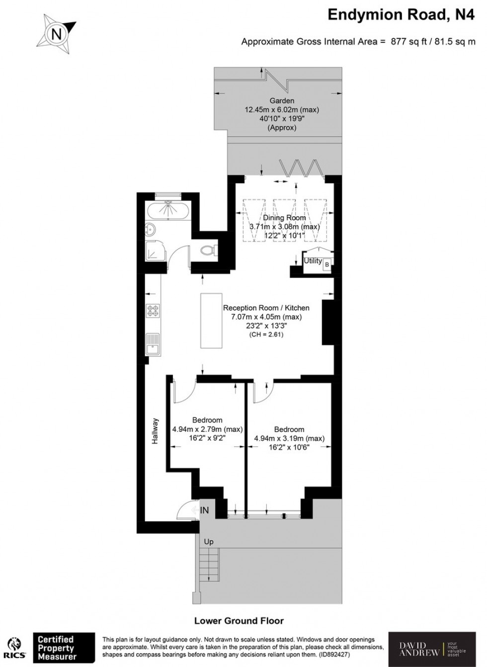
Set within a well-manicured Victorian Villa, this beautifully presented and extended two-bedroom garden apartment of 877 sq ft / 81.5 sq m offers the best of both indoor / outdoor living. Loved and improved by its present owners, this property provides a blend of period charm and modern lifestyle interior.

Accessed via its own private entrance, a useful internal lobby creates a great space for coats and shoes, the hallway naturally leads you to the centre of the apartment, where the flat opens up into an expansive living and entertaining space.
A well-equipped kitchen with large island breakfast bar seamlessly connects the reception space. The kitchen is complete with integrated oven, hob, extractor, and microwave, there's also space for a full-size dishwasher. Crisp décor, wooden flooring enhances the space, chunky shelving and a contemporary vertical radiator adds interest to both alcoves. Tucked away in one corner is a large bathroom, with a separate quadrant power shower, independent bathtub, cleverly positioned WC, and large, heated towel rail. The floating wash hand basin has vanity storage above and below. Moving on, two well-proportioned bedrooms, both of which easily accommodate double beds, with the larger having ample room for freestanding or integrated double wardrobes, and a chest of drawers. Sash windows reveal the greenery in the park opposite. The second bedroom allows a multi-functional space, an ideal guest room, child's room, and/or work from home space. Both bedrooms presently have fitted carpet, the wooden flooring as in the reception still lies beneath. The newest addition and perhaps one of our favourite attributes, a beautiful extended dining space completed in 2019, three oversized Velux windows and full width bifold doors create a wonderfully light environment opening onto a large landscaped private rear garden. The lush green lawn, and what seems to be a never-ending view of the sky creates a very open feel. A useful garden shed provides more storage opportunities and the raised decked seating area a perfect space for alfresco dining and entertaining.

Endymion Road enjoys easy access to Finsbury Park, ideal for the more active among us, the boating lake, children's play area, baseball, tennis, and skate park all add great interest. Easily positioned for Victoria & Piccadilly lines, Great Northern Thameslink. Harringay Green Lanes Overground is just around the corner. There's a wonderful selection of local shopping amenities, bars and restaurants are all on your doorstep.

Long leasehold 140+ years | Two well-proportioned bedrooms | Wonderfully light extension | Large landscaped garden | Beautifully presented throughout | Private entrance | Attractive and well-maintained period building | Well equipped kitchen | Large bathroom |Directly opposite Finsbury Park |Great transport and local amenities |Move in condition |

Leasehold - approx. 140 years remaining on the lease
Ground rent - £250 per annum until 31 May 2036 £500 thereafter
Current service charge - arranged on an ad-hoc basis
Council Tax - Haringey band B £1,462.22

Set within a well-manicured Victorian Villa, this beautifully presented and extended two-bedroom garden apartment of 877 sq ft / 81.5 sq m offers the best of both indoor / outdoor living. Loved and improved by its present owners, this property provides a blend of period charm and modern lifestyle interior.

Accessed via its own private entrance, a useful internal lobby creates a great space for coats and shoes, the hallway naturally leads you to the centre of the apartment, where the flat opens up into an expansive living and entertaining space.
A well-equipped kitchen with large island breakfast bar seamlessly connects the reception space. The kitchen is complete with integrated oven, hob, extractor, and microwave, there's also space for a full-size dishwasher. Crisp décor, wooden flooring enhances the space, chunky shelving and a contemporary vertical radiator adds interest to both alcoves. Tucked away in one corner is a large bathroom, with a separate quadrant power shower, independent bathtub, cleverly positioned WC, and large, heated towel rail. The floating wash hand basin has vanity storage above and below. Moving on, two well-proportioned bedrooms, both of which easily accommodate double beds, with the larger having ample room for freestanding or integrated double wardrobes, and a chest of drawers. Sash windows reveal the greenery in the park opposite. The second bedroom allows a multi-functional space, an ideal guest room, child's room, and/or work from home space. Both bedrooms presently have fitted carpet, the wooden flooring as in the reception still lies beneath. The newest addition and perhaps one of our favourite attributes, a beautiful extended dining space completed in 2019, three oversized Velux windows and full width bifold doors create a wonderfully light environment opening onto a large landscaped private rear garden. The lush green lawn, and what seems to be a never-ending view of the sky creates a very open feel. A useful garden shed provides more storage opportunities and the raised decked seating area a perfect space for alfresco dining and entertaining.

Endymion Road enjoys easy access to Finsbury Park, ideal for the more active among us, the boating lake, children's play area, baseball, tennis, and skate park all add great interest. Easily positioned for Victoria & Piccadilly lines, Great Northern Thameslink. Harringay Green Lanes Overground is just around the corner. There's a wonderful selection of local shopping amenities, bars and restaurants are all on your doorstep.

Long leasehold 140+ years | Two well-proportioned bedrooms | Wonderfully light extension | Large landscaped garden | Beautifully presented throughout | Private entrance | Attractive and well-maintained period building | Well equipped kitchen | Large bathroom |Directly opposite Finsbury Park |Great transport and local amenities |Move in condition |

Leasehold - approx. 140 years remaining on the lease
Ground rent - £250 per annum until 31 May 2036 £500 thereafter
Current service charge - arranged on an ad-hoc basis
Council Tax - Haringey band B £1,462.22

  • Long leasehold 140+ years
  • Two well-proportioned bedrooms
  • Wonderfully light extension
  • Large landscaped garden
  • Private entrance
  • Attractive period building
  • Directly opposite Finsbury Park
  • Move in condition
Floorplan for Endymion Road N4 1EE
EPC Graph for Endymion Road N4 1EE

Viewing


Stroud Green office
(0)207 281 2000
Email
  • Long leasehold 140+ years
  • Two well-proportioned bedrooms
  • Wonderfully light extension
  • Large landscaped garden
  • Private entrance
  • Attractive period building
  • Directly opposite Finsbury Park
  • Move in condition

Free property valuation


With three local offices we have unrivalled market knowledge. A senior member of the David Andrew team will come to your property to provide an accurate sales valuation or rental valuation and offer comparable properties we have sold in order to justify our valuation and to show how we can achieve you the best possible price.


Register with us


Register today to receive instant alerts when we add properties that match your requirements.