Adolphus Road, London, N4 (Share of Freehold)

£825,000

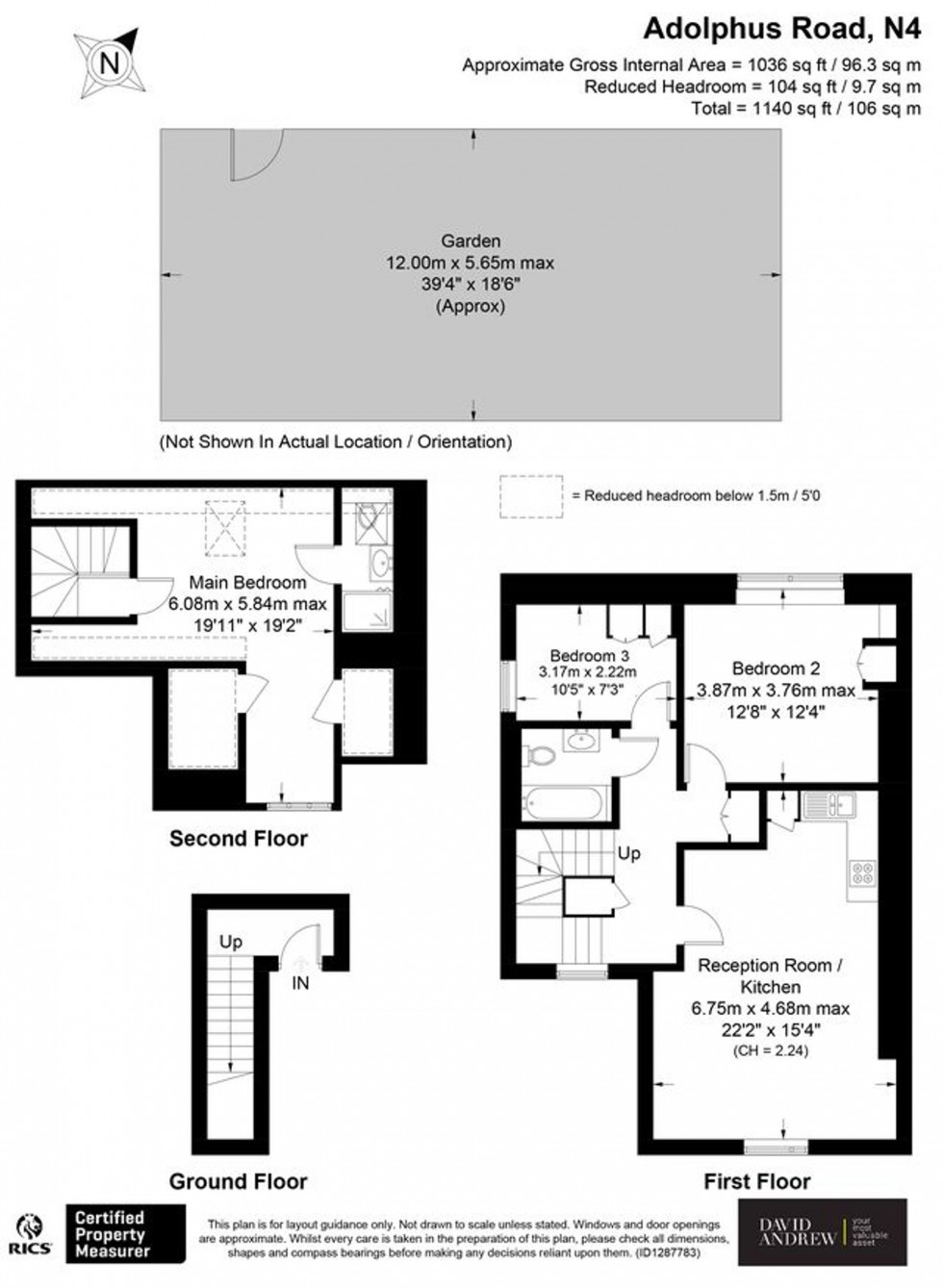
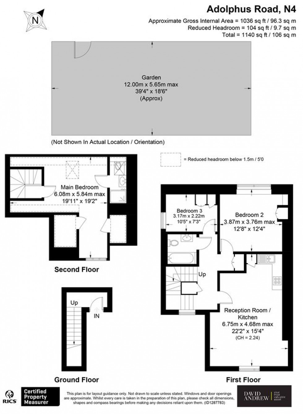
Introducing this well-presented and bright three-bedroom flat arranged over two levels, offering a practical layout and modern interiors throughout, being sold chain free. The first floor features a spacious open-plan reception room and kitchen, ideal for both everyday living and entertaining. This level also comprises two well-proportioned double bedrooms and a contemporary bathroom. Upstairs, the property offers a large principal bedroom with a modern en-suite bathroom. The flat benefits from excellent natural light throughout, enhancing its warm and homely feel, as well as ample storage including two spacious eaves in the principal bedroom, a hallway cupboard, and a separate utility area with washer-drier. Externally, the property benefits from access to a detached private garden via a private path.

Set in a prime location, you’ll have parks, trendy cafés, shops, and excellent transport links at your doorstep. With the Underground (Piccadilly and Victoria Line), National Rail, and buses nearby, commuting to central London is a breeze. A perfect home for those seeking charm, outdoor space, and connectivity in North London.

Introducing this well-presented and bright three-bedroom flat arranged over two levels, offering a practical layout and modern interiors throughout, being sold chain free. The first floor features a spacious open-plan reception room and kitchen, ideal for both everyday living and entertaining. This level also comprises two well-proportioned double bedrooms and a contemporary bathroom. Upstairs, the property offers a large principal bedroom with a modern en-suite bathroom. The flat benefits from excellent natural light throughout, enhancing its warm and homely feel, as well as ample storage including two spacious eaves in the principal bedroom, a hallway cupboard, and a separate utility area with washer-drier. Externally, the property benefits from access to a detached private garden via a private path.

Set in a prime location, you’ll have parks, trendy cafés, shops, and excellent transport links at your doorstep. With the Underground (Piccadilly and Victoria Line), National Rail, and buses nearby, commuting to central London is a breeze. A perfect home for those seeking charm, outdoor space, and connectivity in North London.

  • 1140 sq ft / 106 sq m
  • Spacious open-plan reception/kitchen
  • Private garden | Chain free
  • Three well-proportioned double bedrooms (two generous king-size rooms)
  • Two modern bathrooms (including en-suite)
  • Ample storage throughout, including two large eaves spaces and a separate utility area with washer-drier
  • Amazing location, close to parks, cafés, and local amenities
  • Excellent transport links (Piccadilly & Victoria lines, National Rail)
Floorplan for Adolphus Road, London, N4
EPC Graph for Adolphus Road, London, N4

Material Information

  • Tenure: Share of Freehold
  • Council Tax Band: E
  • Is Loft Boarded: No
  • Outside Space: Type - Garden
  • Outside Space: Description - Large Garden Ideal For Entertaining
  • All Others: Ask Agent

Viewing


  • 1140 sq ft / 106 sq m
  • Spacious open-plan reception/kitchen
  • Private garden | Chain free
  • Three well-proportioned double bedrooms (two generous king-size rooms)
  • Two modern bathrooms (including en-suite)
  • Ample storage throughout, including two large eaves spaces and a separate utility area with washer-drier
  • Amazing location, close to parks, cafés, and local amenities
  • Excellent transport links (Piccadilly & Victoria lines, National Rail)

Free property valuation


With three local offices we have unrivalled market knowledge. A senior member of the David Andrew team will come to your property to provide an accurate sales valuation or rental valuation and offer comparable properties we have sold in order to justify our valuation and to show how we can achieve you the best possible price.


Register with us


Register today to receive instant alerts when we add properties that match your requirements.